Lavabo Treo Tường COTTO: Giải Pháp Tiết Kiệm Không Gian, Tinh Tế Và Bền Bỉ
Bạn đang muốn tìm kiếm một chiếc chậu rửa lavabo tiết kiệm diện tích tối đa cho phòng tắm nhỏ, hay đơn giản là yêu thích sự gọn gàng, thoáng đãng cho không gian vệ sinh? Chậu rửa mặt treo tường COTTO C2400 chính là sự lựa chọn tối ưu nhất đến từ thương hiệu thiết bị vệ sinh uy tín hàng đầu Thái Lan. Với thiết kế gắn tường chắc chắn kết hợp cùng các tùy chọn chân chậu che khuyết điểm, sản phẩm mang lại vẻ đẹp hiện đại, giải phóng diện tích sàn và đảm bảo công năng sử dụng hoàn hảo.
Thông Số Kỹ Thuật Chi Tiết Của Chậu Rửa Mặt Treo Tường Cotto C2400:
- Tên sản phẩm: Chậu rửa mặt treo tường Cotto C2400.
- Model: C2400.
- Chất liệu: Sứ Ceramic.
- Bề mặt: Sáng bóng.
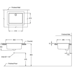
- Kích thước: 615 x 490 x 475 mm (Xem chi tiết ở phần hướng dẫn lắp đặt).
- Công nghệ: Hygienic Easy Clean (chống bám bẩn. kháng khuẩn).
- Bề mặt men sứ: Nano bạc (Ag+) và Zirconium (dễ vệ sinh).
- Lắp đặt: Treo tường.

Chậu rửa mặt treo tường COTTO C2400 dịch vụ
Xuất Xứ Cotto C2400:
- Thương hiệu: Cotto.
- Công nghệ: Thái Lan.
- Phân phối: Pimisi.
Ưu Điểm Nổi Bật Của Lavabo Cotto C2400:
- Tối ưu hóa không gian triệt để: Thiết kế gắn tường giúp loại bỏ hoàn toàn bệ đỡ cồng kềnh phía dưới, tạo cảm giác phòng tắm rộng hơn và thoáng hơn, đặc biệt phù hợp cho các căn hộ nhỏ, phòng trọ hoặc nhà vệ sinh phụ.
- Tùy chọn chân chậu thẩm mỹ: Chậu rửa lavabo COTTO đi kèm các lựa chọn chân lửng (che bộ xả) hoặc chân dài (đặt xuống sàn) giúp che đi phần đường ống nước (xi-phông) thô kệch, tăng tính thẩm mỹ và sự gọn gàng cho không gian.
- Công nghệ men sứ Hygienic kháng khuẩn: Bề mặt sứ được tráng men công nghệ cao siêu láng mịn, ngăn ngừa vết ố vàng, chống bám bẩn và kìm hãm sự phát triển của vi khuẩn, nấm mốc.
- Kết cấu chịu lực an toàn: Hệ thống ốc vít và giá đỡ được thiết kế chuyên biệt, đảm bảo chậu bám chắc vào tường, chịu được tải trọng lớn trong quá trình sử dụng hàng ngày mà không lo rung lắc.
- Lòng chậu thiết kế thông minh: Dù kích thước tổng thể nhỏ gọn nhưng lòng chậu vẫn đảm bảo độ sâu và độ rộng cần thiết, giúp người dùng thoải mái rửa tay, rửa mặt mà không bị bắn nước.
Lợi Ích Thực Tế Khi Sở Hữu Lavabo Treo Cotto C2400:
- Tiết kiệm diện tích: Chậu rửa Cotto treo tường là giải pháp số 1 cho phòng tắm nhỏ hẹp.
- Dễ dàng vệ sinh sàn: Loại bỏ góc chết dưới sàn (với chân lửng), lau chùi nhanh.
- Thẩm mỹ gọn gàng: Che giấu hoàn hảo đường ống nước rườm rà.
- Tiết kiệm chi phí: Giá thành “mềm” hơn so với dòng đặt bàn hay tủ chậu.
- An toàn sức khỏe: Men kháng khuẩn bảo vệ người dùng tối đa.
- Lắp đặt linh hoạt: Dễ dàng điều chỉnh độ cao lắp đặt phù hợp với gia chủ.
Hướng Dẫn Lắp Đặt Chậu Rửa Mặt Kháng Khuẩn Cotto C2400:
- Bạn nên tham khảo kỹ kích thước chi tiết trước khi đặt hàng, để quá trình lắp đặt dễ dàng, đúng với thiết kế (xem chi tiết ở phần hình ảnh).
- Mọi thông số kỹ thuật chậu rửa mặt kháng khuẩn Cotto C2400 mang tính khách quan có thể có sai số của công cụ đo lường.

Hướng Dẫn Lắp Đặt Chậu Rửa Mặt Kháng Khuẩn Cotto C2400
+ Bạn chưa biết chậu rửa mặt treo tường Cotto C2400 có phù hợp với phòng tắm nhà Bạn và có dễ lắp đặt không?
+ Bạn yên tâm nhé!
+ Đội ngũ của shop luôn sẵn sàng hỗ trợ bạn.
Báo Giá Chậu Rửa Mặt Lavabo COTTO Hà Nội Chính Hãng Ở Đâu Rẻ Nhất – Tốt Nhất?
- Chúng tôi là đơn vị phân phối chính hãng sản phẩm chậu rửa mặt treo tường Cotto C2400 nói riêng và phân phối thiết bị nhà tắm COTTO nói chung tại Hà Nội (HN) và các tỉnh lân cận.
- Luôn có sự kết hợp chặt chẽ giữa khách hàng, nhà máy sản xuất, cùng các phòng ban khác để đưa ra các sản phẩm phù hợp, ghi nhận ý kiến từ người dùng để tăng thêm trải nghiệm ngày càng tốt hơn.
- Luôn có chính sách mua hàng – giao hàng – bảo trì tối ưu và hợp lý nhất đến tay khách hàng, đảm bảo mọi quyền lợi cho các bên.
- Để đáp lại sự tin tưởng, cũng như ủng hộ của Quý Khách Hàng, bên mình cũng đưa ra các chương trình khuyến mại với giá chậu rửa mặt lavabo COTTO Hà Nội chính hãng ưu đãi, tri ân khách hàng đã và sắp tới ủng hộ công ty, cùng xây dựng thương hiệu uy tín trong lòng Quý Khách Hàng.
- Đến với bên mình khách hàng dễ dàng đặt niềm tin bền vững, khi bên mình có địa chỉ showroom rõ ràng hoạt động gần 15 năm, phục vụ hàng triệu khách hàng từ hộ gia đình đến các công ty xây dựng.
- Với niềm tin đó bên mình đưa đến tay người tiêu dùng bồn rửa mặt kháng khuẩn Cotto C2400 chính hãng mang thương hiệu Thái Lan với giá hợp lý nhất, giá rẻ nhất.
- Cuối cùng nhưng không kém phần quan trọng, nếu Bạn có bất kỳ câu hỏi nào, vui lòng liên hệ với Pimisi, Pimisi luôn sẵn lòng phục vụ Bạn.










