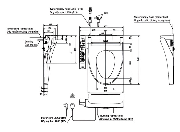
Kích thước: 472D x 530W x 147H mm
Màu sắc: Trắng
Thiết kế: Thân dài
Áp lực nước: 0.05 ~ 0.75 MPa
Nguồn điện: 220V, 50/60Hz
Tính năng
• Điều khiển bên hông tiện lợi
• Phun sương lòng bàn cầu
• Vòi rửa massage đa chức năng, rửa sạch, êm ái
• Tự vệ sinh vòi rửa trước và sau khi sử dụng bằng nước điện phân EWATER+
• Sấy khô, khử mùi, sưởi ấm nắp ngồi
Sản xuất: TOTO








