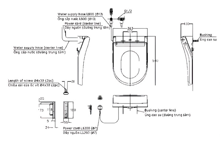
Kích thước: 540D x 383W x 130H mm
Màu sắc: Trắng
Thiết kế: Thân chữ D
Áp lực nước: 0.05 ~ 0.75 MPa
Nguồn điện: 220V, 50/60Hz
Tính năng
• Điều khiển từ xa
• Công nghệ nước điện phân khử khuẩn Ewater+ vệ sinh vòi rửa
• Vòi rửa massage đa chức năng, rửa sạch, êm ái
• Chế độ vệ sinh theo xung nhịp
• Tự vệ sinh vòi rửa trước và sau khi sử dụng
Sản xuất: TOTO



