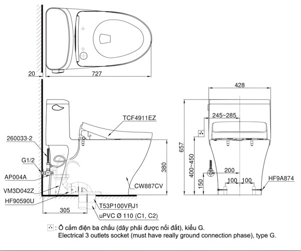
Bàn cầu một khối MS887CRW12 (Nắp rửa điện tử WASHLET dòng S7)
Kích thước: 727D x 428W x 657H mm
Màu sắc: Trắng
Hệ thống xả: Xả xoáy Tornado
Lượng nước xả: 4.8L
Thiết kế: Thân dài, thân kín
Tâm xả: 305 mm
Áp lực nước: 0.05 ~ 0.70 MPa
Nguồn điện: 220V, 50/60Hz
Lưu ý: Bao gồm bích nối sàn, van dừng
Tính năng
•Thiết kế giấu dây hiện đại, tăng tính thẩm mỹ
•Men sứ chống dính, chống bám bẩn CEFIONTECT
•Hệ thống xả xoáy Tornado siêu mạnh, siêu êm, tiết kiệm nước
•Nắp đóng/ mở tự động
•Công nghệ nước điện phân khử khuẩn Ewater+ (Phun tráng lòng bàn cầu và vệ sinh vòi rửa)
•Vòi rửa massage đa chức năng, rửa sạch, êm ái
•Chế độ đưa bọt khí vào giọt nước
•Tự vệ sinh vòi rửa trước và sau khi sử dụng
•Sấy khô, khử mùi, sưởi ấm nắp ngồi
Hãng sản xuất: TOTO




