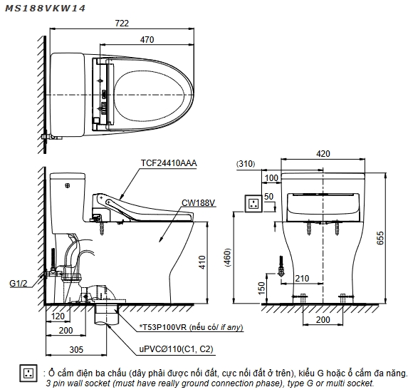
Kích thước: L722 x W420 x H655mm
Màu sắc: Trắng
Hệ thống xả: Tornado
Lượng nước xả: 4.8L
Thiết kế: Thân dài, thân kín
Tâm xả: 305mm
Áp lực nước: 0.05 ~ 0.75MPa
Lưu ý: Bích nối sàn T53P100VR: phụ kiện bán rời, không đóng gói cùng thân cầu
Tính năng
• Men sứ chống dính, chống bám bẩn CEFIONTECT
• Hệ thống xả xoáy Tornado siêu mạnh, siêu êm, tiết kiệm nước
• Tích hợp vòi rửa nước lạnh với chức năng rửa sau và rửa tiểu nữ




