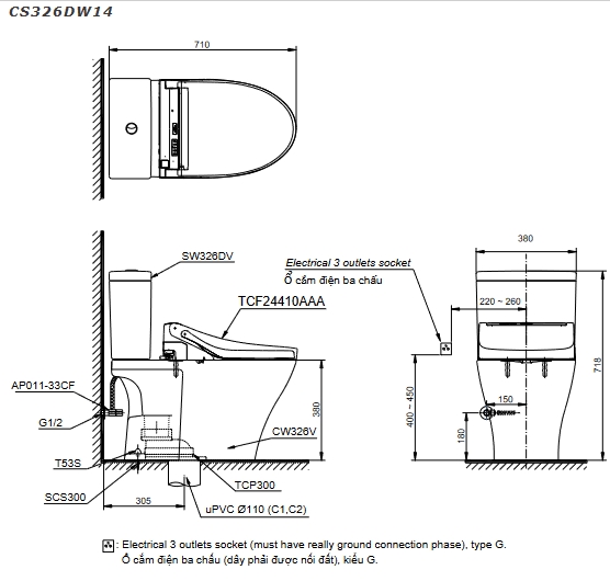
Bàn cầu hai khối kèm nắp rửa điện tử WASHLET dòng C5 TCF24410AAA
Size: 700D x 420 W x 734H mm
Màu sắc: Trắng
Hệ thống xả: Tornado
Lượng nước xả: 4.8L/3L
Thiết kế: Thân dài, thân hở
Tâm xả: 305 mm
Áp lực nước: 0.05 ~ 0.70 MPa
Lưu ý: Bao gồm bích nối sàn, van dừng
Tính năng
• Thiết kế giấu dây hiện đại, tăng tính thẩm mỹ
• Men sứ chống dính, chống bám bẩn CEFIONTECT
• Hệ thống xả xoáy Tornado siêu mạnh, siêu êm, tiết kiệm nước
• Công nghệ nước điện phân khử khuẩn Ewater+ (Vệ sinh vòi rửa)
• Vòi rửa massage đa chức năng, rửa sạch, êm ái
• Tự vệ sinh vòi rửa trước và sau khi sử dụng
• Sấy khô, khử mùi, sưởi ấm nắp ngồi






