Bàn cầu 01 khối nắp điện tử C9205
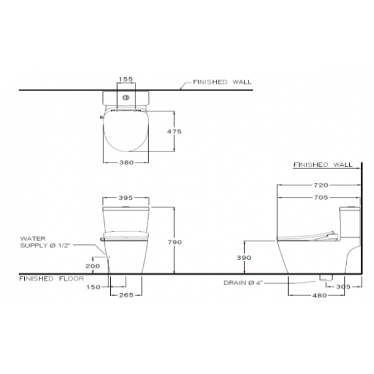
Thân dài, S Trap (305 mm)
Kích thước: 395x705x790mm
Xả Wash Down, xả nhấn 2.5/4L
Bao gồm van khóa, đế cầu
Chất liệu: sứ vệ sinh
Công nghệ xả rửa mạnh mẽ, cuốn trôi mọi vết bẩn
Công nghệ kháng khuẩn Ultra Clean+ ức chế sự phát triển của vi khuẩn lên đến 99% trong 24h và bề mặt bóng mịn.
Thoải mái khi sự dụng kích cỡ tiện lợi nắp ngồi dễ chịu
Thiết kế thông minh: Tối giản những góc cạnh, giúp dể dàng vệ sinh
Tiết kiệm nước
Thân thiện với môi trường
Xuất xứ: Thái Lan



