Màu sắc: Trắng
Hệ thống xả: Tornado
Lượng nước xả: 4.5/3L
Thiết kế: Thân dài, thân bán kín
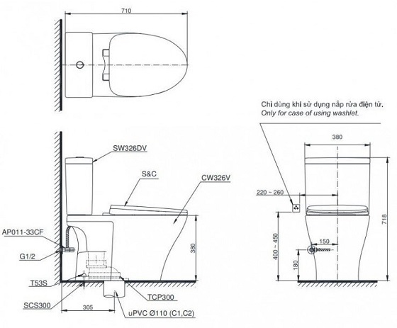
Tâm xả: 305 mm
Áp lực nước: 0.05 ~ 0.70 MPa
Lưu ý: Bao gồm van dừng và dây cấp
Men sứ chống dính, chống bám bẩn CEFIONTECT
Hệ thống xả xoáy Tornado siêu mạnh, siêu êm, tiết kiệm nước
Xuất xứ
Hãng sản xuất: TOTO
Công nghệ sản xuất: Nhật Bản











