Thông tin sản phẩm bồn cầu 2 khối xả cảm ứng nắp điện tử INAX ACT-602+CW-H20VN
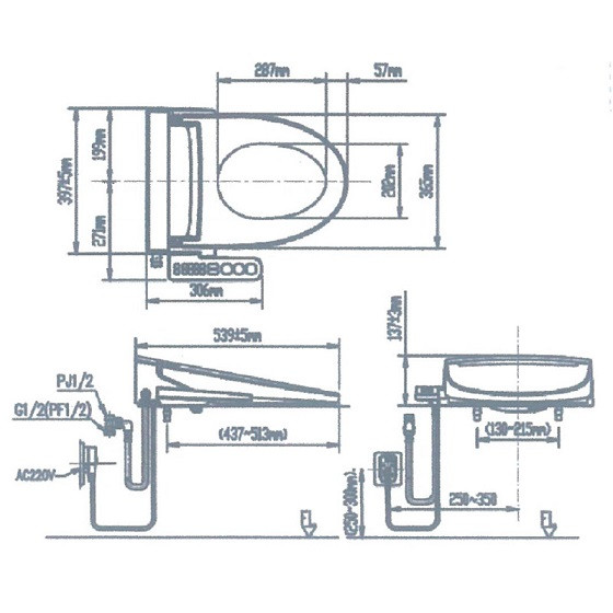
Kích thước (DxRxC): 721x398x741 mm
Tâm thoát: 300mm (+-5)
Màu sắc: Trắng
Lượng nước xả: 4.5L
Thiết kế vành Rim không góc khuất, giúp dễ dàng vệ sinh
Một cửa xả xoáy, một cửa đẩy trợ lực
Công nghệ xả tự động (không chạm), Chống nước IP67
Pin 4*AA có thể thay dễ dàng
Men sứ Aqua Ceramic chống bẩn
Kèm nắp rửa điện tử CW-H20VN
Kích thước: 539x496x137 mm
Áp lực nước: 0.05~0.75(MPa)
Công suất: 950W
Nhiệt độ nước nóng: 32/40 độ C
Nhiệt độ bệ ngồi: 28/37 độ C
Nhiệt độ sấy 30/55 độ C
Đặc điểm nổi bật bồn cầu 2 khối xả cảm ứng nắp điện tử INAX ACT-602+CW-H20VN
Bồn cầu ACT-602 với các ưu điểm:
Có thiết kế đẹp mắt, nhỏ gọn, thích hợp lắp đặt tại nhiều không gian có diện tích rộng
Trang bị lớp men sứ Aqua Ceramic giúp những vết ố vàng hay đọng nước không thể hình thành trong lòng bồn cầu, cho độ sáng bóng lên tới nhiều năm.
Kỹ thuật xả Powerful Vortex Flush cửa xả thứ nhất chiếm 65% nước tạo xoáy mạnh mẽ, cửa thứ 2 chiếm 35% nước đẩy trợ lực đảm bảo cuốn trôi hoàn toàn chất bẩn, tiết kiệm nước đáng kể chỉ trong 1 lần nhấn xả.
Công nghệ xả tự động không cần chạm tay, nút cảm biến sẽ tự động kích hoạt xả nước nhanh chóng, không cần chạm vào bất kỳ bề mặt nào, hạn chế sự lây lan của vi khuẩn giúp người dùng được bảo vệ tối đa, hạn chế tiếp xúc với các bề mặt.
Thiết kế không vành Rim tạo nên tạo ra dòng xoáy cực mạnh giúp đánh trôi hết những vết bẩn cứng đầu, bề mặt nhẵn mịn, dễ vệ sinh.
Tích hợp nắp rửa điện tử CW-H20VN với tính năng:
Vệ sinh tối ưu với hai vòi phun rửa riêng biệt
Vòi rửa tự vệ sinh
Cung cấp nước nóng liên tục với công nghệ làm nóng trực tiếp
Nắp rửa kháng khuẩn với vật liệu kháng khuẩn
Hyperkilamic (chứng nhận bởi SIAA)
Sưởi ấm bệ ngồi với 6 mức điều chỉnh nhiệt độ
Nước ấm với 6 mức điều chỉnh nhiệt độ
Vòi rửa massage
Sấy ấm với 3 mức điều chỉnh nhiệt độ
Khử mùi tự động bằng than hoạt tính
Bảng điều khiển gắn liền linh hoạt, với thiết kế led viền xung quanh icon giúp dễ dàng nhận biết
Chức năng tiết kiệm điện
Kiểm soát nhiệt độ với rơ le nhiệt, tự ngắt khi có sự cố
Hãng sản xuất: INAX
Công nghệ sản xuất: Nhật Bản








