Bồn Cầu 1 Khối American Standard: Thiết Kế Liền Khối Sang Trọng, Xả Sạch Vượt Trội & Chuẩn Mỹ
Bạn đang muốn tìm kiếm một chiếc bồn cầu không chỉ là thiết bị vệ sinh mà còn là một tác phẩm nội thất hiện đại, giúp nâng tầm đẳng cấp cho phòng tắm gia đình? Bạn chán ngấy cảnh phải hì hục cọ rửa những khe kẽ bám bẩn của bồn cầu cũ? Bồn cầu American Standard VF-1808 (One-piece Toilet) chính là sự lựa chọn hoàn hảo đến từ thương hiệu thiết bị vệ sinh uy tín hàng đầu nước Mỹ. Kế thừa di sản hơn 140 năm của thương hiệu Mỹ và công nghệ tiên tiến từ tập đoàn LIXIL, sản phẩm mang lại chuẩn mực vệ sinh mới: Sạch – Thơm – Bền – Đẹp.
Thông Số Kỹ Thuật Chi Tiết Của Bồn Cầu Am
erican Standard VF-1808:
- Tên sản phẩm: Bồn cầu American Standard VF-1808.
- Model: VF-1808.
- Chất liệu: Sứ Ceramic.
- Bề mặt: ComfortClean kháng khuẩn.
- Hệ thống: Hygiene Clean mạnh mẽ (loại bỏ mảng bám trong 1 lần xả).
- Bảo hành: Chính hãng American Standard.
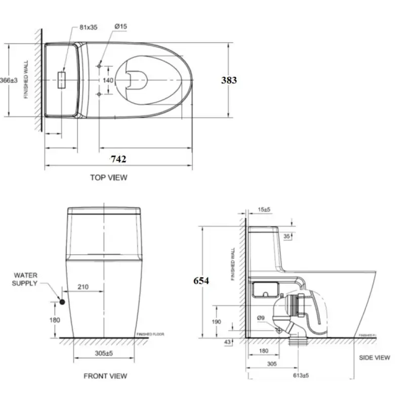
- Kích thước: 742x383x654 mm (Xem chi tiết ở phần hướng dẫn lắp đặt).
- Bộ sưu tập: Acacia.
- Thiết kế: 1 khối.
- Tâm xả: 305mm.
- Kiểu xả: Nhấn 2 nút 3/4.5L.
- Hệ thống xả: Xoáy.
- Lắp đặt: Sàn.

Bồn cầu American Standard VF-1808 (VF1808) 1 khối dòng Acacia (TL)
Xuất Xứ American VF-1808:
- Thương hiệu: American Standard.
- Công nghệ: Mỹ.
- Phân phối: Pimisi.
Ưu Điểm Nổi Bật Của Bồn Cầu American 1 Khối VF-1808:
- Thiết kế liền khối & Thân kín (Skirted Design): Điểm mạnh nhất của dòng bồn cầu American 1 khối là thiết kế không có khe hở giữa két nước và thân bồn cầu. Đa số các mẫu cao cấp của American Standard còn có thiết kế thân kín hoàn toàn (che đi đường ống xả), giúp loại bỏ nơi trú ngụ của bụi bẩn và nấm mốc, giúp việc vệ sinh trở nên nhẹ nhàng chỉ với vài đường lau.
- Công nghệ men Aqua Ceramic – Trắng sạch 100 năm: Đây là công nghệ độc quyền thừa hưởng từ LIXIL. Lớp men này có tính siêu ưa nước, cho phép nước luồn vào giữa vết bẩn và bề mặt sứ để nâng bổng chất thải lên và cuốn trôi đi dễ dàng. Đồng thời ngăn chặn sự hình thành vệt ố vàng do cặn khoáng, giữ cho bồn cầu luôn sáng bóng suốt 100 năm.
- Hệ thống xả Double Vortex & SiphonMax:
- Double Vortex: Xả xoáy đôi với 2 cửa xả tạo ra lốc xoáy nước cực mạnh, bao phủ 100% lòng bầu, cuốn trôi mọi thứ mà vẫn tiết kiệm nước tối đa.
- SiphonMax: Kết hợp dòng nước xoáy và tia đẩy chân không (jet), tạo lực hút cực mạnh giúp tống khứ cả những chất thải nặng và nhẹ một cách nhanh chóng, hạn chế tắc nghẽn.
- Men kháng khuẩn ComfortClean: Lớp men nung được tích hợp kẽm oxide giúp tiêu diệt vi khuẩn E.coli gây hại ngay trên bề mặt bệ ngồi và lòng bồn cầu, bảo vệ sức khỏe người dùng lâu dài chứ không chỉ là lớp phủ bề mặt tạm thời.
Lợi Ích Thực Tế Khi Sở Hữu Bồn Cầu Liền Khối American VF-1808:
- Thẩm mỹ tinh tế: Kiểu dáng hiện đại, phóng khoáng, phù hợp mọi phong cách nội thất.
- Vệ sinh nhàn tênh: Thiết kế ít góc chết, men chống bám bẩn giúp giảm tần suất cọ rửa.
- Không gian yên tĩnh: Hệ thống xả êm ái, nắp đóng êm không gây tiếng ồn.
- Tiết kiệm nước: Các chế độ xả 3L/4.5L tối ưu hóa hóa đơn tiền nước.
- Bảo chứng thương hiệu toàn cầu: Sự an tâm tuyệt đối đến từ tập đoàn LIXIL – Bảo hành lớp men vĩnh viễn và phụ kiện chính hãng bồn cầu 1 khối lâu dài.
Hướng Dẫn Lắp Đặt Bàn Cầu American Standard VF-1808:
- Bạn nên tham khảo kỹ kích thước chi tiết trước khi đặt hàng, để quá trình lắp đặt dễ dàng, đúng với thiết kế (xem chi tiết ở phần hình ảnh).
- Mọi thông số kỹ thuật bàn cầu American Standard VF-1808 mang tính khách quan có thể có sai số của công cụ đo lường.

Hướng Dẫn Lắp Đặt Bàn Cầu American Standard VF-1808
+ Bạn chưa biết bồn cầu American Standard VF-1808 có phù hợp với phòng tắm nhà Bạn và có dễ lắp đặt không?
+ Bạn yên tâm nhé!
+ Đội ngũ của shop luôn sẵn sàng hỗ trợ bạn.
Báo Giá Bồn Cầu American Standard Chính Hãng Ở Đâu Rẻ Nhất – Tốt Nhất?
- Chúng tôi là đơn vị phân phối chính hãng sản phẩm bồn cầu American Standard VF-1808 nói riêng và phân phối thiết bị nhà tắm AMERICAN STANDARD nói chung tại Hà Nội (HN) và các tỉnh lân cận.
- Luôn có sự kết hợp chặt chẽ giữa khách hàng, nhà máy sản xuất, cùng các phòng ban khác để đưa ra các sản phẩm phù hợp, ghi nhận ý kiến từ người dùng để tăng thêm trải nghiệm ngày càng tốt hơn.
- Luôn có chính sách mua hàng – giao hàng – bảo trì tối ưu và hợp lý nhất đến tay khách hàng, đảm bảo mọi quyền lợi cho các bên.
- Để đáp lại sự tin tưởng, cũng như ủng hộ của Quý Khách Hàng, bên mình cũng đưa ra các chương trình khuyến mại với giá bồn cầu American Standard chính hãng ưu đãi, tri ân khách hàng đã và sắp tới ủng hộ công ty, cùng xây dựng thương hiệu uy tín trong lòng Quý Khách Hàng.
- Đến với bên mình khách hàng dễ dàng đặt niềm tin bền vững, khi bên mình có địa chỉ showroom rõ ràng hoạt động gần 15 năm, phục vụ hàng triệu khách hàng từ hộ gia đình đến các công ty xây dựng.
- Với niềm tin đó bên mình đưa đến tay người tiêu dùng xí bệt cho WC tiết kiệm tinh tế American Standard VF-1808 chính hãng mang thương hiệu Mỹ với giá hợp lý nhất, giá rẻ nhất.
- Cuối cùng nhưng không kém phần quan trọng, nếu Bạn có bất kỳ câu hỏi nào, vui lòng liên hệ với Pimisi, Pimisi luôn sẵn lòng phục vụ Bạn.






