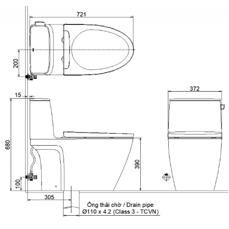
Kích thước (DxRxC): 721x372x680 mm
Tâm thoát: 300mm (+-5)
Màu sắc: Trắng
Lượng nước xả: 4.5L
Hệ thống xả: Xả xoáy
Thiết kế vành Rim không góc khuất, giúp dễ dàng vệ sinh
Một cửa xả xoáy, một cửa đẩy trợ lực
Men sứ Aqua Ceramic chống bẩn
Kèm nắp rửa điện tử CW-KB22AVN
Nước cấp: Nối trực tiếp từ đường ống nước
Áp suất nước cấp: 0.06 – 0.75MPa
Nguồn điện: AC 220V, 336W, 50Hz
Kích thước: 474x149x554mm
Dung tích két nước nóng: 0.67L (lít)
Số lỗ phun: 4 lỗ x 0.8mm
Công suất điện làm nóng nước: 275W
Xuất xứ
Hãng sản xuất: INAX


