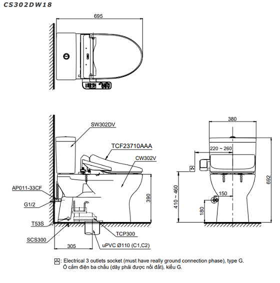
Bàn cầu 2 khối kèm nắp rửa điện tử WASHLET dòng C2 cơ bản TCF23710AAA
Kích thước: L695 x W380 x H692 (mm)
Màu sắc: Trắng
Hệ thống xả: Siphon
Lượng nước xả: 4.8L/3L
Thiết kế: Thân dài, thân bán kín
Tâm xả: 305mm
Áp lực nước: 0.05MPa~0.70MPa
Lưu ý: Bao gồm van dừng và dây cấp
Tính năng
• Thiết kế thân bán kín, thân dài
• Hệ thống xả Siphon siêu mạnh, tiết kiệm nước
• Vòi rửa massage đa chức năng, rửa sạch, êm ái
• Tự vệ sinh vòi rửa trước và sau khi sử dụng
• Sưởi ấm bệ ngồi, phun sương















