Bàn cầu hai khối kèm nắp rửa điện tử WASHLET
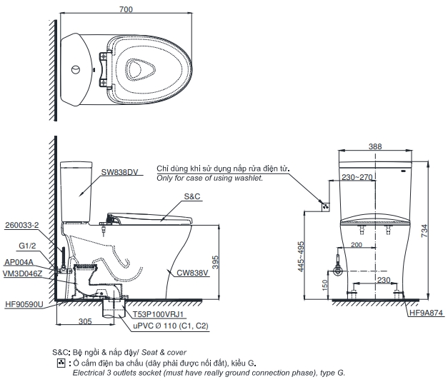
Kích thước: 700D x 388W x 734H mm
Màu sắc: Trắng
Hệ thống xả: Tornado
Lượng nước xả: 4.5L/3L
Thiết kế: Thân dài, thân kín
Tâm xả: 305 mm
Áp lực nước: 0.05 ~ 0.70 Mpa
Nguồn điện: 220V, 50/60Hz
Lưu ý: Bao gồm bích nối sàn, van dừng
Men sứ chống dính, chống bám bẩn CEFIONTECT
Hệ thống xả xoáy Tornado siêu mạnh, siêu êm, tiết kiệm nước
Phun sương lòng bàn cầu
Vòi rửa massage đa chức năng, rửa sạch, êm ái
Tự vệ sinh vòi rửa trước và sau khi sử dụng
Sấy khô, khử mùi, sưởi ấm bệ ngồi
Xuất xứ
Hãng sản xuất: TOTO
Công nghệ: Nhật Bản











