Bàn cầu một khối, kèm nắp rửa điện tử NEW WASHLET
đa chức năng TCF4911Z (220V)
Men sứ chống dính CeFiONtect
Hệ thống xả Tornado với công nghệ ECOMAX hiệu quả, tiết kiệm nước (4.5L/3.8L)
Thân dài, thân kín
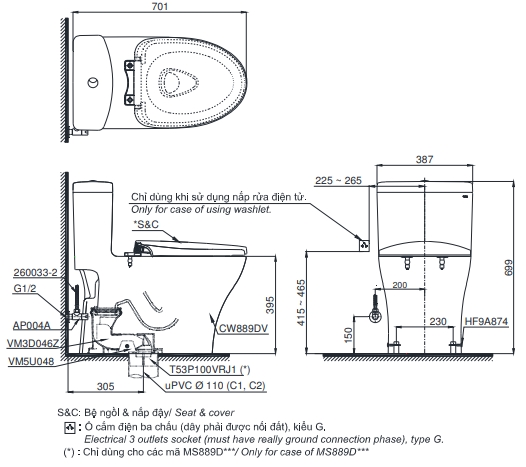
Tâm xả: 305mm
(Bao gồm bích nối sàn, van dừng)
Thiết kế bàn cầu điện tử không dây mới
Nắp rửa điện tử Washlet (220V) đóng/ mở tự động với nhiều chức năng rửa và sấy khô
Thiết kế thân kín, vành kín tiện dụng cho việc vệ sinh hàng ngày
Công nghệ CeFiONtect giúp lòng bàn cầu siêu nhẵn, hạn chế tối đa các vết bẩn, vi khuẩn
Hệ thống xả xoáy Tornado mạnh mẽ, dòng nước xoáy đều quanh mặt cầu đem lại hiệu quả tối ưu
Nắp đóng/ mở tự động khi kích hoạt mắt cảm ứng
Ewater+ tự động phun sương làm sạch lòng cầu và vòi rửa bằng cách ngăn vi khuẩn đảm bảo vệ sinh
Chức năng phát sáng đèn nhẹ trong đêm
Xuất xứ
Hãng sản xuất: TOTO










