Bàn cầu treo tường kèm nắp rửa điện tử WASHLET seri RX
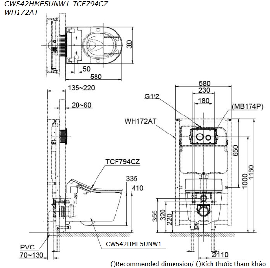
Kích thước: 579D x 383W x 146H
Màu sắc: Trắng
Hệ thống xả: Tornado
Lượng nước xả: 4.5/3L
Thiết kế: Thân chữ D, thân kín
Tâm xả: 220 mm
Áp lực nước: 0.05 ~ 0.75 MPa
Nguồn điện: 220V, 50/60Hz
Lưu ý: Không được kết hợp với van xả trực tiếp
Tính năng
• Men sứ chống dính, chống bám bẩn CEFIONTECT
• Hệ thống xả Tornado, siêu mạnh, siêu êm, tiết kiệm nước
• Công nghệ nước điện phân khử khuẩn Ewater+ (Vệ sinh vòi rửa)
• Chế độ đưa bọt khí vào giọt nước
• Vòi rửa massage đa chức năng, rửa sạch, êm ái
Hãng sản xuất: TOTO
Công nghệ: Nhật Bản










