Bàn cầu treo tường kèm nắp rửa điện tử WASHLET seri RW
Có tính năng xả tự động
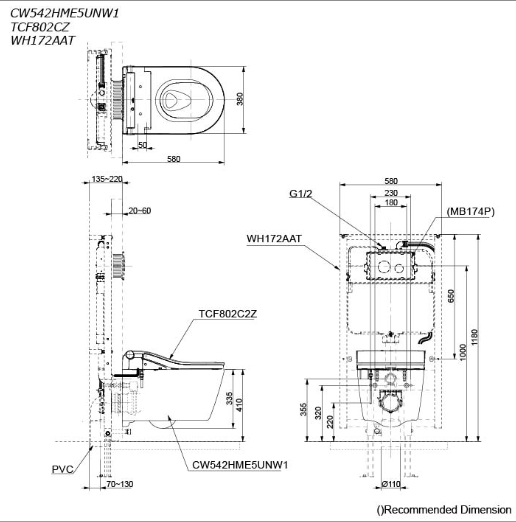
Kích thước: 579D x 383W x 146H
Màu sắc: Trắng
Hệ thống xả: Tornado
Lượng nước xả: 4.5/3L
Thiết kế: Thân chữ D, thân kín
Tâm xả: 220 mm
Áp lực nước: 0.05 ~ 0.75 MPa
Nguồn điện: 220V, 50/60Hz
Lưu ý: Không được kết hợp với van xả trực tiếp
Men sứ chống dính, chống bám bẩn CEFIONTECT
Hệ thống xả Tornado, siêu mạnh, siêu êm, tiết kiệm nước
Công nghệ nước điện phân khử khuẩn Ewater+ (Vệ sinh vòi rửa)
Chế độ đưa bọt khí vào giọt nước
Vòi rửa massage đa chức năng, rửa sạch, êm ái
Hãng sản xuất: TOTO
Công nghệ: Nhật Bản











