Bàn cầu treo tường kết hợp van xả cảm ứng
Thiết kế: Thân dài, thân kín
Hệ thống xả: Xả xoáy Tornado
Loại xả: Xả tự động 4.5L/3L
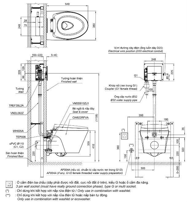
Tâm xả: 220 mm
Kích thước: 540D x 380W x 335H mm
Nguồn điện: AC 220V
Màu sắc: Trắng
Áp lực nước: 0.1 ~ 0.75MPa
Van xả cảm ứng tự động: TREF35L2A
Nắp đóng êm: TC600VS
Tính năng sản phẩm
• Thiết kế tối giản, hiện đại
• Men sứ chống dính, chống bám bẩn CEFIONTECT
• Hệ thống xả Tornado tự động, cảm ứng hiện đại
• Mặt nạ xả làm từ kim loại, thiết kế không viền, vừa đẹp vừa dễ vệ sinh
• Có nút nhấn xả, đèn LED hiển thị chức năng
• Hiệu suất xả nhất quán với lưu lượng xả không đổi khi thay đổi áp lực nước
• Thiết kế chống chập cháy, chống nước tràn trong bo mạch, lớp chống cặn tại các đường ống cấp.
• Van xả có khả năng học máy, tự động phát hiện người sử dụng
Xuất xứ
Hãng sản xuất: TOTO
Công nghệ sản xuất: Nhật Bản




