Bàn cầu treo tường kèm nắp rửa điện tử WASHLET C5
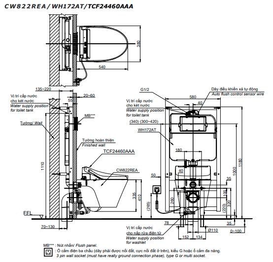
Kích thước: 595D x 380W x 335H mm
Màu sắc: Trắng
Hệ thống xả: Tornado
Lượng nước xả: 4.5/3L
Thiết kế: Thân dài, thân kín
Tâm xả: 220 mm
Áp lực nước: 0.05 ~ 0.75 MPa
Nguồn điện: 220V, 50/60Hz
Lưu ý: Không được kết hợp với van xả trực tiếp
• Thiết kế giấu dây hiện đại, tăng tính thẩm mỹ
• Men sứ chống dính, chống bám bẩn CEFIONTECT
• Hệ thống xả xoáy Tornado siêu mạnh, siêu êm, tiết kiệm nước
• Công nghệ nước điện phân khử khuẩn Ewater+ (Chế độ vệ sinh vòi rửa)
• Vòi rửa massage đa chức năng, rửa sạch, êm ái
• Tự vệ sinh vòi rửa trước và sau khi sử dụng
• Sấy khô, khử mùi, sưởi ấm bệ ngồi
Nắp: Malaysia


