Bàn cầu LE MUSE treo tường, nắp đóng êm TC811SJ
Hệ thống xả: Siphon
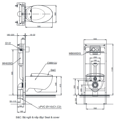
Thiết kế: Thân dài
Tâm xả: 220 mm
Kích thước: 380x595x346 mm
Áp lực nước: 0.05Mpa~0.75Mpa
Màu sắc: Màu trắng
Thiết kế hài hòa với bộ LE MUSE
Nắp đóng êm
Thiết kế thân kín giúp tiết kiệm thời gian, chi phí vệ sinh sản phẩm
Bàn cầu kiểu dáng treo tường giúp dễ dàng vệ sinh
Thiết kế két nước âm tường
Hãng sản xuất: TOTO



