Thông số nguồn điện.
Điện áp: AC220V±15%
Tần số: 50Hz ± 5Hz
Tổng nguồn: 1,45 kw
Công suất bơm sục Massage tạo sóng: 1,1 kw.
Công suất bơm sục khí : 0,35kw
Thông số nguồn nước
Áp lực thường : 0,2÷0,4MPA
Lưu lượng nước : 0,3÷0,8l/s
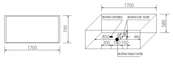
Đường cấp nước nóng lạnh : Ø 15
Đường thoát : Ø48
Sản phẩm có các chức năng.
Tắm: Sản phẩm có các chức năng sục Massage, tắm sen tay đi động .
Sục thủy lực: Sục Massage tuần hoàn có tạo sóng.
Sục khí : Pha trộn nước và không khí làm sạch nước. .
Hệ thống thiết bị đi kèm
Sen tay: 1 bộ.
Bộ chia chức năng nước : 2 bộ.
Bộ điều chỉnh chế độ sen vòi: 1 bộ
Vòi cấp nước : 1 chiếc.
Điều chỉnh chế độ sục (Min – Max) :1 chiếc
Công tắc hơi : 2 bộ.
Chế độ cảm ứng mực nước: Có.
Gối : 1 chiếc.
Sục Massage: Có 9 mắt sục.
Sục khí : Có 10 mắt sục khí .
Hãng sản xuất: GOVERN
Công nghệ sản xuất: CHÂU ÂU


