Chậu Rửa Lavabo Viglacera CD20 Đặt Bàn: Đỉnh Cao Thiết Kế, Tiết Kiệm Vượt Trội Cho Không Gian Tắm Sang Trọng
Bạn đang tìm kiếm một chiếc chậu rửa lavabo đặt bàn không chỉ sở hữu thiết kế tinh xảo, hiện đại mà còn tích hợp công nghệ men sứ giúp bề mặt sáng bóng bền lâu, đảm bảo an toàn và sự tiện nghi tối đa? VIGLACERA CD20 chính là sự lựa chọn hoàn hảo, đến từ thương hiệu thiết bị vệ sinh VIGLACERA uy tín hàng đầu Việt Nam. Sản phẩm nổi bật với thiết kế có kiểu dáng đơn giản và tinh tế, dễ lắp đặt và hài hòa với nhiều không gian phòng tắm khác nhau trong ngôi nhà của Bạn.
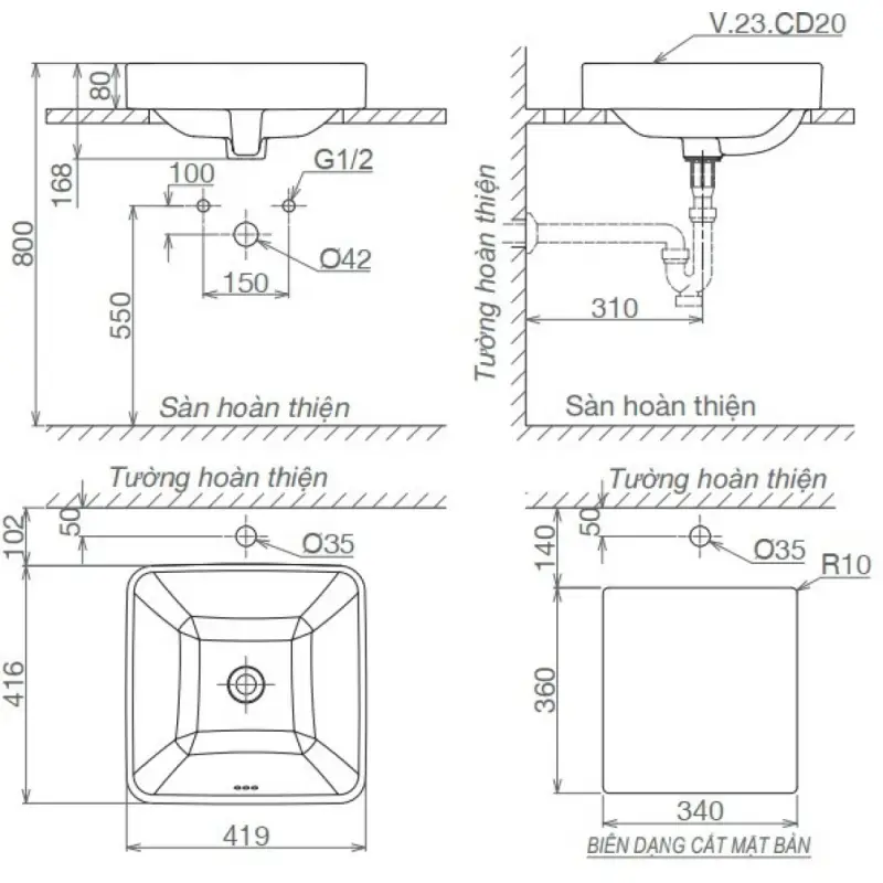
Thông Số Kỹ Thuật Chi Tiết Của Chậu Rửa Lavabo Viglacera CD20 Đặt Bàn:
- Tên sản phẩm: Chậu rửa lavabo Viglacera CD20 đặt bàn.
- Model: CD20.
- Chất liệu chính: Sứ vệ sinh cao cấp.
- Kích thước: 419 x 416 x 168 mm.
- Màu sắc: Trắng.
- Bảo hành: Chính hãng.
- Công nghệ men sứ: Men Nano Titan/ Ag+ Ceramic kháng khuẩn, chống bám bẩn.
- Lắp đặt: Đặt bàn.
- Lỗ thoát tràn: Có.
- Không bao gồm phụ kiện: Vòi, bộ xả, chân chậu.

Chậu rửa lavabo Viglacera CD20 đặt bàn
Xuất Xứ Viglacera CD20:
- Thương hiệu: Viglacera.
- Công nghệ: Ý.
- Sản xuất: Việt Nam.
- Phân phối: Pimisi.
Ưu Điểm Nổi Bật Của Chậu Rửa Mặt Viglacera CD20 Sứ:
- Công Nghệ Men Nano Titan Kháng Khuẩn Vượt Trội – Sáng Bóng Bền Lâu: Chậu rửa mặt Viglacera CD20 sứ sở hữu lớp men sứ chống bám bẩn, diệt khuẩn lên đến 89%, ngăn chặn sự hình thành và bám dính của cặn khoáng, vết ố vàng, duy trì độ trắng sáng của chậu trong thời gian dài.
- Lòng Chậu Sâu Rộng Tiện Dụng – Tối Ưu Không Gian: Lòng chậu được thiết kế sâu và rộng hạn chế tối đa tình trạng nước văng ra ngoài khi sử dụng, mang lại sự thoải mái tối đa cho người dùng.
- Chất Liệu Sứ Chống Bám Bẩn – An Toàn Và Độ Bền Cao: Chất liệu sứ cao cấp và công nghệ men sứ đảm bảo chậu có độ bền cao với khả năng chống ố, giữ vẻ trắng sáng lâu dài, dễ dàng vệ sinh sạch sẽ, đảm bảo sức khỏe người dùng.
- Thiết Kế Tinh Tế, Thanh Lịch – Nâng Tầm Đẳng Cấp Phòng Tắm: Chậu rửa thiết kế kiểu dáng đặt nổi hình vuông mang phong cách nhẹ nhàng, thanh lịch, hiện đại, dễ dàng kết hợp với các loại vòi cổ cao hoặc vòi âm tường để tạo nên một tổng thể phòng tắm sang trọng và có điểm nhấn.
- Lắp Đặt Đặt Bàn – Tối Ưu Không Gian: Chậu có thiết kế đặt bàn, dưới sàn hoàn toàn trống, dễ dàng cho việc dọn rửa, vệ sinh sàn nhà tắm. Đồng thời, thiết kế này giúp không gian trở nên sang trọng và tạo điểm nhấn hơn, dễ dàng tận dụng bàn đá để đựng các vật dụng khác trong nhà tắm.
Lợi Ích Thiết Thực Khi Sở Hữu Chậu Rửa Lavabo Viglacera CD20 Trắng Sáng:
- Tính thẩm mỹ cao: Thiết kế đặt bàn hình vuông đơn giản mà thanh lịch, tạo điểm nhấn cao cấp, gọn gàng trên mặt bàn đá. Kiểu dáng này phù hợp với nhiều phong cách kiến trúc, giúp nâng tầm không gian phòng tắm.
- Tiện ích khi sử dụng : Chậu tích hợp lỗ xả tràn thông minh, giúp người dùng thoải mái sử dụng mà không lo nước bắn ra ngoài hay bị tràn nước khi vô ý.
- Dễ dàng vệ sinh và bảo trì: Chất liệu men sứ trắng sáng, hạn chế bám cặn và vết ố, giúp việc lau chùi nhanh chóng, duy trì vẻ đẹp của sản phẩm và khu vực phòng tắm.
- Độ bền vượt trội, an tâm sử dụng: Chất liệu sứ cao cấp với công nghệ men sứ đảm bảo chậu có độ bền cao và khả năng chống ố, giữ vẻ trắng sáng lâu dài.
- An tâm tuyệt đối với chính sách bảo hành: Chất lượng chậu rửa lavabo Viglacera CD20 trắng sáng được đảm bảo từ thương hiệu Việt Nam.
Hướng Dẫn Lắp Đặt Chậu Rửa Mặt Dương Bàn Viglacera CD20 Vuông:
- Bạn nên tham khảo kỹ kích thước chi tiết trước khi đặt hàng, để quá trình lắp đặt dễ dàng, đúng với thiết kế (xem chi tiết ở phần hình ảnh).
- Mọi thông số kỹ thuật của chậu rửa mặt dương bàn Viglacera CD20 vuông mang tính khách quan có thể có sai số của công cụ đo lường

Hướng Dẫn Lắp Đặt Chậu Rửa Mặt Dương Bàn Viglacera CD20 Vuông
+ Bạn chưa biết chậu rửa lavabo Viglacera CD20 đặt bàn có phù hợp với phòng tắm nhà Bạn và có dễ lắp đặt không?
+ Bạn yên tâm nhé!
+ Đội ngũ của shop luôn sẵn sàng hỗ trợ bạn.
Báo Giá Chậu Rửa Mặt Lavabo Viglacera CD20 Đặt Bàn Chính Hãng Ở Đâu Rẻ Nhất – Tốt Nhất?
- Chúng tôi là đơn vị phân phối chính hãng sản phẩm chậu rửa lavabo Viglacera CD20 đặt bàn nói riêng và phân phối thiết bị nhà tắm VIGLACERA nói chung tại Hà Nội (HN) và các tỉnh lân cận.
- Luôn có sự kết hợp chặt chẽ giữa khách hàng, nhà máy sản xuất, cùng các phòng ban khác để đưa ra các sản phẩm phù hợp, ghi nhận ý kiến từ người dùng để tăng thêm trải nghiệm ngày càng tốt hơn.
- Luôn có chính sách mua hàng – giao hàng – bảo trì tối ưu và hợp lý nhất đến vòi khách hàng, đảm bảo mọi quyền lợi cho các bên.
- Để đáp lại sự tin tưởng, cũng như ủng hộ của Quý Khách Hàng, bên mình cũng đưa ra các chương trình khuyến mại với giá chậu rửa mặt lavabo Viglacera CD20 đặt bàn ưu đãi, tri ân khách hàng đã và sắp tới ủng hộ công ty, cùng xây dựng thương hiệu uy tín trong lòng Quý Khách Hàng.
- Đến với bên mình khách hàng dễ dàng đặt niềm tin bền vững, khi bên mình có địa chỉ showroom rõ ràng hoạt động gần 15 năm, phục vụ hàng triệu khách hàng từ hộ gia đình đến các công ty xây dựng.
- Với niềm tin đó bên mình đưa đến với người tiêu dùng chậu rửa mặt lavabo đặt bàn tiện dụng Viglacera CD20 chính hãng mang thương hiệu Việt Nam với giá hợp lý nhất, giá rẻ nhất.
- Cuối cùng nhưng không kém phần quan trọng, nếu Bạn có bất kỳ câu hỏi nào, vui lòng liên hệ với Pimisi, Pimisi luôn sẵn lòng phục vụ Bạn.













Đánh giá
Chưa có đánh giá nào.