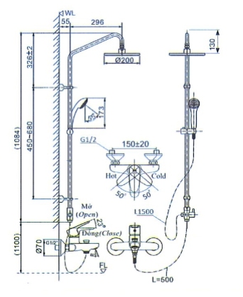
Áp lực nước cấp: 0.07 – 0.75 Mpa
Có khả năng điều chỉnh độ cao của tay sen phù hợp với chiều cao mỗi người
Tay sen kiểu dáng trang nhã với tia nước mềm mại, xoa dịu căng thẳng
Bát sen lớn hình tròn cho dòng nước ôm trọn cơ thể, tạo cảm giác thoải mái khi tắm
Lớp mạ Crom/ Niken dầy, tạo độ sáng bóng bền lâu
Van điều khiển bằng sứ có độ bền cao, chống rò rỉ trong mọi điều kiện áp lực
Vòi phun ẩn bên trong, dòng chảy tạo bọt massage dễ chịu
Van gật gù điều chỉnh nhiệt độ nước nhanh chóng
Công nghệ sản xuất: Nhật Bản






